PROJECT IN L.
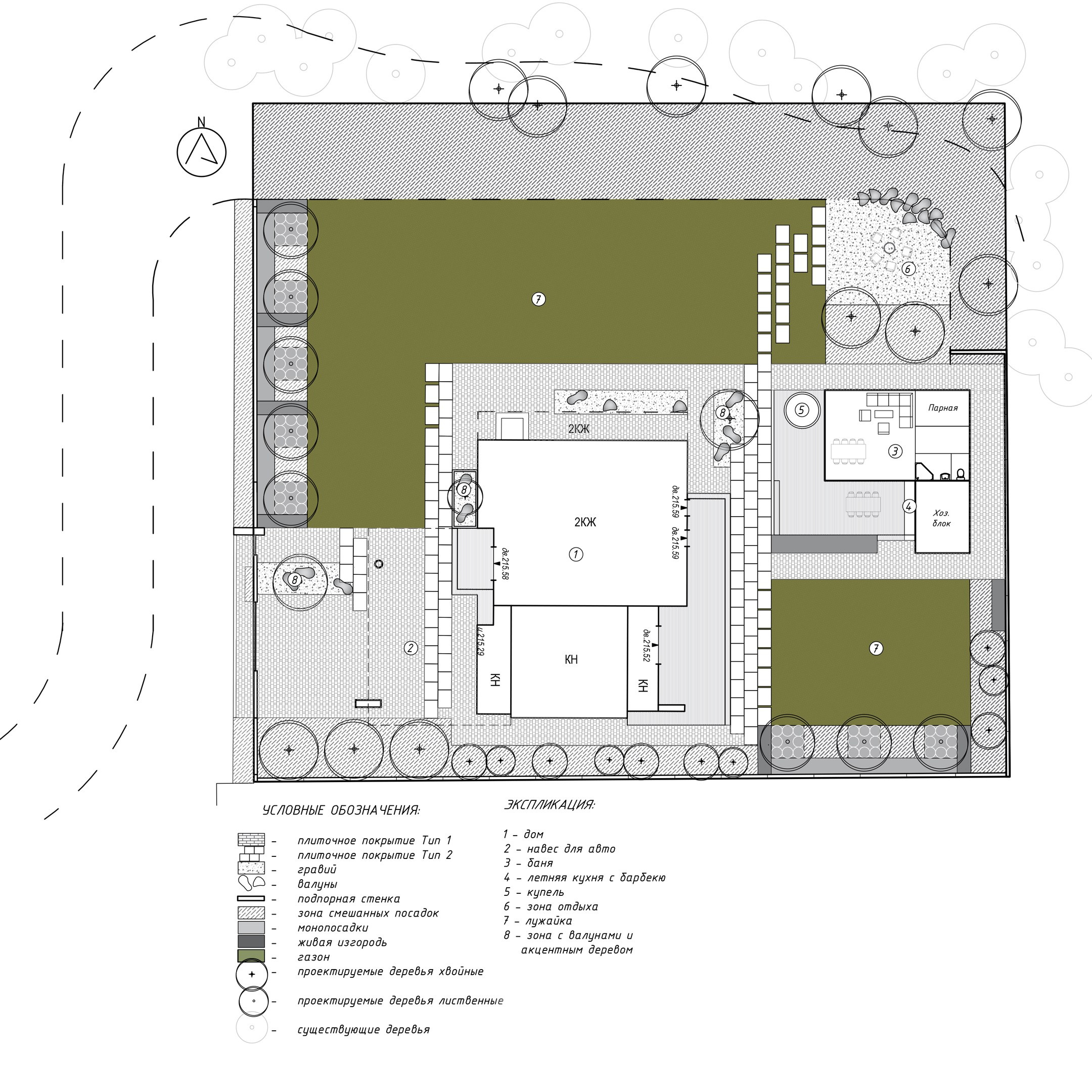
Функциональное наполнение в этом саду небольшое. Надо было расположить и продумать баню, по возможности добавить кострище. Вся остальная часть участка должна быть «садом». Но на участке имеется большой склон высотой до 7 метров, за которым начинается лес. В углу, где высота склона наименьшая, мы расположили кострище с большими валунами. Так как на первой встрече заказчик дал понять, что не очень любит яркие кричащие оттенки, то мне захотелось лишь подчеркнуть строгость и современность дома. Поэтому в ассортименте растений все достаточно спокойное, лаконичное и зеленое! Основной акцент в растениях был сделан на текстуру и форму. Мощение в этом проекте тоже непростое. Основная масса сделана из мелкой тротуарной плитки, но чтобы не было однотипно и скучно, я разбавила его крупноформатной плиткой. Она находится на основных транзитах и расположена таким образом, что создает направление движения. Рядом с террасой дома крайний ряд плитки выложен с небольшим промежутком, куда проникает газон и тем самым размывается четкая граница между зеленым и твердым покрытием.
- Местоположение: Логойск, Беларусь
- Проектирование: 2024
- Площадь: 15 соток


























